小红楼论坛bbs,贵阳品茶工作室,上海中圈高端私人外卖工作室,春满江苏唐人阁扬州

水泵基础知识(一)

2017-07-09 11:18:22 上??靡?/span>

1. 什么叫泵?

答:通常把提升液体、输送液体和使液体增加压力的机器统称为泵。

2. 泵根据工作原理结构分几类?其内容包括哪些?

答:⑴ 容积泵:利用工作容积周期性变化来输送液体,如活塞泵、柱塞泵、隔膜泵、齿轮泵、滑片泵、螺杆泵等。

凯泉泵业|凯泉水泵|上??獆凯泉水泵价格|凯泉水泵选型|凯泉泵业集团 

⑵ 叶片泵:利用叶片和液体相互作用来输送液体,如离心泵、混流泵、轴流泵、漩涡泵等。

凯泉泵业|凯泉水泵|上??獆凯泉水泵价格|凯泉水泵选型|凯泉泵业集团 

⑶ 其它类型泵:包括只改变液体位能的泵,如水车等;利用流体能量来输送液体的泵,如射流泵、水锤泵等。

3. 什么叫泵流量?其单位有哪些?

答:流量又叫排量、扬水量等,是泵在单位时间内排出液体的数量。有体积单位和重量单位两种表示方法。

体积流量用Q表示,单位为米3/秒、米3/时和升/秒等。

重量流量用G表示,单位为吨/时、公斤/秒等。

重量流量和体积流量的关系为:G=γ·Q

式中:γ——液体重度(kg/m3)

4. 什么叫泵的扬程?其单位有哪些?

答:单位重量的液体通过泵后所获得的能量俗称为扬程,又叫总扬程或全扬程。

其单位是米液柱,1米液柱=0.1kg/cm2

5. 离心泵的流量与扬程是什么关系?

凯泉泵业|凯泉水泵|上海凯泉|凯泉水泵价格|凯泉水泵选型|凯泉泵业集团凯泉泵业|凯泉水泵|上??獆凯泉水泵价格|凯泉水泵选型|凯泉泵业集团答:Q大        H小,Q小         H大

即流量增大,扬程降低;反之流量减少,扬程增大。

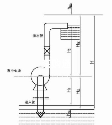
6. 离心泵扬程在数值上究竟等于什么?

凯泉泵业|凯泉水泵|上海凯泉|凯泉水泵价格|凯泉水泵选型|凯泉泵业集团 

我们知道单位重量的液体通过泵后所获得的能量称为扬程,如果不考虑吸入管和排出管的摩擦损失hh的话,那么泵的扬程在数值上就等于该泵能提升的液体的高度H1+H2,另外泵的扬程H也可以通过泵的出口压力PC与入口压力PB之差来求得。

H=(PCPB/γ米液柱

式中:H-泵的扬程

      γ-液体重度,kg/m3